Kletterhallenanbau

Ein kleine Chronologie

22.04.2024

Schon beim Bau der Kletterhalle im Jahr 2009 war die Idee geboren worden, irgendwann eine Erweiterung, z.B. mit einem Boulderbereich, an die Halle anzubauen. Im Folgenden findest du eine kleine Chronologie der Ereignisse.

April 2024: Installation von Nistkästen

Um sicherzustellen, dass der Anbau möglichst naturverträglich realisert werden kann, wurde mit Hilfer einer "speziellen artenschutzrechtlichen Prüfung" (saP) untersucht, welche Tiere von der Rodung und dem Anbau betroffen sein könnten. Neben Vögeln ging es dabei auch um Fledermäuse und Reptilien sowie Nagetiere. Eine der Auflagen, die aus dem Gutachten hervorging, verlangte die Anbringung von Nistkästen, um den Wegfall von Nistmöglichkeiten durch die Rodung der Waldfläche zu kompensieren, speziell als Ausgleich für eine vorgefundene Halbhöhle:

  • Ein Rund-Nistkasten mit spezifischem Einflugloch für den Gartenrotschwanz
  • Ein Flachnistkasten für Fledermäuse

Mit tatkräftiger Unterstützung des Fledermausbeauftragten im Landkreis Nbg. Land, Heinz Neudert vom Landesbund für Vogelschutz, wurde diese Auflage mittlerweile erfüllt.

Februar 2024: Rodung und Ersatzaufforstung

Für den Anbau muss leider ein Stück Wald weichen. Nachdem ein Artenschutzgutachten ergeben hatte, dass eine Rodung ohne schwerwiegende Auswirkungen auf die Tierwelt möglich ist, wurde diese im Februar von vielen ehrenamtlichen Helferinnen und Helfern durchgeführt. Im Gegenzug für die verlorene Waldfläche sorgte die Sektion für eine Ersatzaufforstung einer ca. 450qm großen Fläche im Gemeindegebiet Burgthann.

Januar 2024: Heureka - die Baugenehmigung ist da!

Nachdem der Bauantrag bereits Anfang 2023 eingereicht wurde, kam jetzt, fast ein Jahr später, die Baugenehmigung vom Markt Feucht. Immer wieder mussten zusätzliche Informationen eingereicht werden, teilweise doppelt, obwohl bereits entsprechende Vereinbarungen getroffen worden waren. Wie dem auch sei: nach langem Warten kann es nun endlich weiter gehen!

Januar 2023: Betrachtung der Baumfallzone

Bei einer Begehung der Anbaufläche mit Frau Kaiser (Markt Feucht) sowie Herrn Jüstl (Forstamt) ging um die Frage, wie das Thema Baumfall, also ddie Gefahr durch umstürzende Bäume in nächster Nähe des Anbaus, mitberücksichtigt werden muss.

Um eine vollständige Rodung eines weiträumigen Bereichs zu vermeiden, wurde das Anlegen eines gestuften Waldrandes beschlossen. Demnach wird nur der eigentliche Baubereich vollständig gerodet. Im angrenzenden Randbereich werden dann mittelhoch wachsende Bäume/Sträucher und niedrig wachsende Bäume/Sträucher gepflanzt.

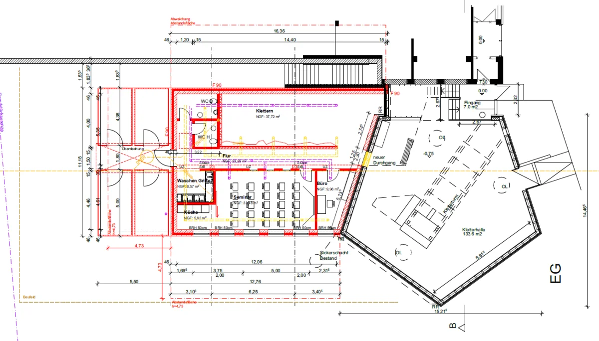
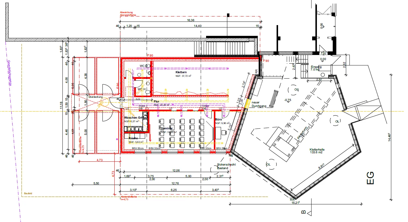
Der geplante Grundriss

Ein Trainingsbereich mit Kilterboard oder ähnlichem sowie einer Boulderwand für Kurse und Kinder ist ebenso geplant wie ein für Ausbildung, Sitzungen und andere Zusammenkünfte nutzbarer Seminarraum. Die modulare Bauweise der dringend benötigten Lagerräume bietet die Möglichkeit für zukünftige Erweiterungen. Sanitäre Einrichtungen sowie kleine Küchen- und Bürobereiche runden das Angebot ab.

2019: Beschluss in der Mitgliederversammlung

Im Jahr 2019 wurde dann der Anbau durch die Mitgliederversammlung beschlossen. Von der Idee des reinen Boulderraums war man zwischenzeitlich wieder abgekommen, da es mittlerweile durch die vielen professionellen Boulderhallen in der Umgebung eine zu große Konkurrenz gab. Außerdem wurde klar, dass vor allem der Bedarf an Lagerfläche sowie einem Raum für Schulungen und Sektionstreffen groß war.

Die Kostenschätzung belief sich damals auf ca. 360T €. Die Finanzierung sollte zum größten Teil aus angesparten Eigenmitteln erfolgen, außerdem waren die Bedingungen für Zuschüsse vom Alpenverein und dem Markt Feucht erfüllt. Darüber hinaus würden bei Bedarf Darlehen aufgenommen werden.